防水层需要做延展?答案是肯定的。近日网众验房的喻师傅在重庆某毛坯房进行验收,在验收的过程中发现该户卫生间的防水层未做外延。未做外延在居住时容易存在水渗漏的情况。

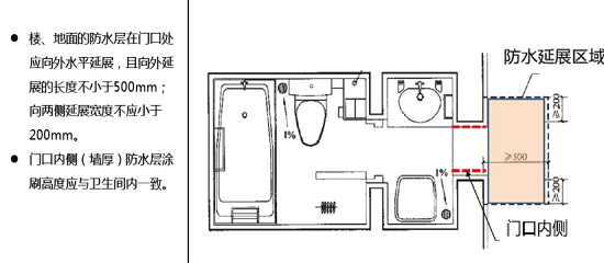
防水房间的防水要求沿墙面上返300mm,与门口处往外延伸500mm。房间里的水大部分通过地漏排走。仍存有少量水。

通过防水截断处是薄弱处,水分渗下去的概率比较大,因此往外延伸一部分。所以防水延展是必不可少的。
喻师傅在查验该户的过程中发现了不止防水未做延展的问题,其他问题也需要及时整改,一起看看其余较为严重的问题。
阻火圈未固定
阻火圈就是为了防止火势蔓延到整栋楼层而设置的一种专门的零件。阻火圈一般安装在天花板的水管儿处,与天花板的水管儿紧密相连结。阻火圈未固定,容易松脱,没有阻火圈一旦发生火灾,家里的水管儿属于塑料的材质,遇到火会急速的燃烧,加剧火势。
贯穿性开裂
该套精装房存在贯穿性开裂、多处地面开裂;而贯穿性裂纹是房子的严重质量问题之一。贯穿性裂缝的出现严重影响建筑物的安全性能。这样的裂缝对结构的承重力、防火性、抗渗性、抗钢筋锈蚀性等耐久性能会产生比较大的影响。
墙地面多处空鼓
造成墙面空鼓的原因,通常是墙面粉灰层中的水泥含量偏低,而石灰的含量过重,造成墙面结构性差,附着力低,直接导致墙面的空鼓和开裂。毛坯房墙面空鼓,危害不小。空鼓处贴砖,容易造成瓷砖脱落,而刮腻子做乳胶漆,容易造成房屋装修好以后的墙面裂纹。
阴阳角垂直偏差度大
阴阳角垂直偏差度很大的话,影响房屋观感和使用功能。比如:阴角处墙面不垂直,摆放柜子、家具会有缝隙。门洞阳角不垂直,安装门套歪斜不方正。凸出来的阳角容易磕碰,入住时间长了墙面很容易破损不耐用。这也是现在很多家装会对阳角做圆滑处理,安装护角条的原因。
金属箱未接地
金属箱体接地线是很容易被忽略的点,虽然常被忽略,但并不代表它不重要,因为弱电箱内部会设置一些电器设备,比如交换机、路由器等,而这些设备我们并不能保证它的绝缘处理质量如何,有可能会产生漏电,导致金属箱体带电。箱体接地可以将电流导入大地,起到了对人体的保护作用。
排污管需要穿过墙壁,管道和地面衔接的地方就会有缝隙存在,要是防水措施做的不好的话,就容易漏水。严重的还会影响楼下的邻居,非常麻烦。我们要及时的解决,因为除了出现漏水的问题,长时间不管的话还会造成掉皮发霉的状况,影响邻里间的关系,所以解决漏水问题刻不容缓。
时间:发表于 2022-06-01 14:52